Vyhľadávanie:

číslo inzerátu: 3121936
inzerát vložený: 28.1. 2020 09:33
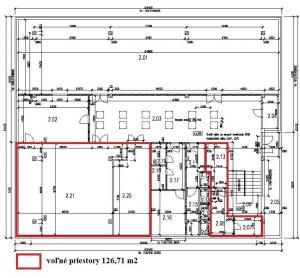
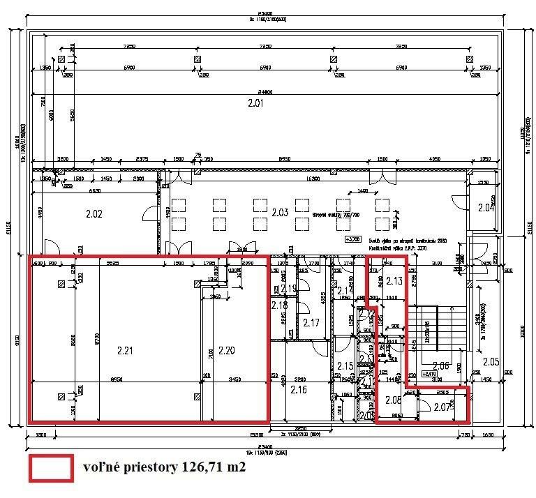
Výhodne prenajmeme prevádzkové priestory s rozlohou 126,71 m2 na sídlisku Vlčince I v Žiline. Objekt je vzdialený od centra mesta cca 2,5 km a od hlavného dopravného ťahu 0,5 km. Priestory sú vhodné pre poskytovanie rozmanitého druhu služieb, relaxu a zábavy, pre zriadenie obchodnej prevádzky. V objekte sa nachádzajú aj ďalšie zabehnuté prevádzky, napr. knižnica a reštaurácia s barom. V prípade záujmu je možné umiestniť reklamu na fasáde budovy. Cena dohodou. Viac informácií na tel. č. 0903 895 241 alebo prenajomreality@slovanet.sk.

Lokalita Žilina

Cena: dohodou



Registrovaný užívateľ

Prezývka: ID-424285

Telefón: +421 903 895 241

Lokalita: Žilina


Všetky inzeráty užívateľa ID-424285

Zdieľať na Facebooku

Zmazať inzerát

Upraviť inzerát

Vytisknout

Nahlásit SPAM/podvodný inzerát

Pokud se domníváte, že tento inzerát je SPAM, podvod, případně porušuje podmínky inzerce, klikněte na tlačítko nahlásit. Toto hlášení bude ověřeno administrátorem a inzerát případně vymazán.


poslať E-mail

Vaša odpoveď:

Ochrana proti spamu: napíšte koľko je 2 + 8 :

Váš e-mail:

Úvodná strana | Pridať inzerát | Podmienky inzercie | Kontakt | Nápověda
Akékoľvek kopírovanie a iné využívanie obsahu i-Bazar.sk bez písomného súhlasu i-Bazar.sk je zakázané. Prevádzkovateľ nenesie zodpovednosť za obsah uverejňovaných inzerátov. (ID 3474)
© 2005 - 2026 i-Bazar.sk | 0.02