Vyhľadávanie:

číslo inzerátu: 3121707
inzerát vložený: 6.9. 2019 06:57
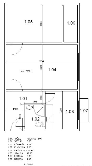
Veľmi výhodne prenajmeme zrekonštruovaný, zariadený a klimatizovaný 2-izbový byt na Komárnickej ul. v Bratislave - časť Ružinov. Byt sa nachádza v tichej lokalite na 2. poschodí a má plochu 55 m2. Pozostáva z dvoch obytných miestností, kuchyne, predsiene, kúpeľne, WC, balkóna a loggie. Izby sú priechodné. Cena dohodou. Viac informácií na tel. č. 0903 895 241 alebo na prenajomreality@slovanet.sk.

Lokalita Bratislavský kraj

Cena: Nevyplnené



Registrovaný užívateľ

Prezývka: ID-424285

Telefón: +421 903 895 241

Lokalita: Bratislavský kraj


Všetky inzeráty užívateľa ID-424285

Zdieľať na Facebooku

Zmazať inzerát

Upraviť inzerát

Vytisknout

Nahlásit SPAM/podvodný inzerát

Pokud se domníváte, že tento inzerát je SPAM, podvod, případně porušuje podmínky inzerce, klikněte na tlačítko nahlásit. Toto hlášení bude ověřeno administrátorem a inzerát případně vymazán.


poslať E-mail

Vaša odpoveď:

Ochrana proti spamu: napíšte koľko je 8 + 3 :

Váš e-mail:

Úvodná strana | Pridať inzerát | Podmienky inzercie | Kontakt | Nápověda
Akékoľvek kopírovanie a iné využívanie obsahu i-Bazar.sk bez písomného súhlasu i-Bazar.sk je zakázané. Prevádzkovateľ nenesie zodpovednosť za obsah uverejňovaných inzerátov. (ID 3449)
© 2005 - 2026 i-Bazar.sk | 0.06