Vyhľadávanie:

číslo inzerátu: 3121575
inzerát vložený: 15.8. 2019 07:23
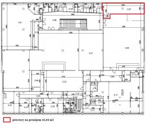
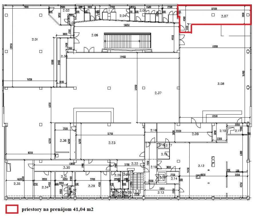
Výhodne prenajmeme priestory s rozlohou 41,04 m2 na poschodí obchodného domu Junior na Hlinskej ulici v blízkosti centra mesta Žilina. Priestory je možné upraviť podľa požiadavky. Výhodou je vysoká frekventovanosť ľudí, nakoľko sa objekt nachádza na sídlisku. Parkovanie je možné priamo pri objekte. Priestory sú vhodné na poskytovanie rozmanitého druhu služieb, zábavy a relaxu alebo. pre zriadenie obchodnej prevádzky. Cena dohodou. Viac informácií na tel. č. 0903 895 241 alebo na prenajomreality@slovanet.sk.

Lokalita Žilinský kraj

Cena: Nevyplnené



Registrovaný užívateľ

Prezývka: ID-424285

Telefón: +421 903 895 241

Lokalita: Žilinský kraj


Všetky inzeráty užívateľa ID-424285

Zdieľať na Facebooku

Zmazať inzerát

Upraviť inzerát

Vytisknout

Nahlásit SPAM/podvodný inzerát

Pokud se domníváte, že tento inzerát je SPAM, podvod, případně porušuje podmínky inzerce, klikněte na tlačítko nahlásit. Toto hlášení bude ověřeno administrátorem a inzerát případně vymazán.


poslať E-mail

Vaša odpoveď:

Ochrana proti spamu: napíšte koľko je 4 + 1 :

Váš e-mail:

Úvodná strana | Pridať inzerát | Podmienky inzercie | Kontakt | Nápověda
Akékoľvek kopírovanie a iné využívanie obsahu i-Bazar.sk bez písomného súhlasu i-Bazar.sk je zakázané. Prevádzkovateľ nenesie zodpovednosť za obsah uverejňovaných inzerátov. (ID 3440)
© 2005 - 2026 i-Bazar.sk | 0.02