Vyhľadávanie:

číslo inzerátu: 3120308
inzerát vložený: 19.12. 2018 12:34
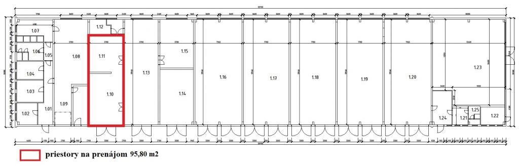
Výhodne prenajmeme garážové priestory v logistickom areáli priemyselnej časti mesta Žilina - časť Bánová. Garáž s plochou 95,80 m2 je vhodná na výkon podnikateľskej činnosti (opravy a údržba vozidiel, skladovanie, iné činnosti). Predmetné priestory sa nachádzajú v objekte, ktorý je strážený, s dostatkom miesta pre parkovanie osobných aj nákladných vozidiel, s možnosťou stravovania. V prípade záujmu sú v objekte k dispozícii aj kancelárske priestory. Cena dohodou. Viac informácií na tel. č. 0903 895 241 alebo na prenajomreality@slovanet.sk.

Lokalita Žilina

Cena: Nevyplnené



Registrovaný užívateľ

Prezývka: ID-424285

Telefón: +421 903 895 241

Lokalita: Žilina


Všetky inzeráty užívateľa ID-424285

Zdieľať na Facebooku

Zmazať inzerát

Upraviť inzerát

Vytisknout

Nahlásit SPAM/podvodný inzerát

Pokud se domníváte, že tento inzerát je SPAM, podvod, případně porušuje podmínky inzerce, klikněte na tlačítko nahlásit. Toto hlášení bude ověřeno administrátorem a inzerát případně vymazán.


poslať E-mail

Vaša odpoveď:

Ochrana proti spamu: napíšte koľko je 2 + 6 :

Váš e-mail:

Úvodná strana | Pridať inzerát | Podmienky inzercie | Kontakt | Nápověda
Akékoľvek kopírovanie a iné využívanie obsahu i-Bazar.sk bez písomného súhlasu i-Bazar.sk je zakázané. Prevádzkovateľ nenesie zodpovednosť za obsah uverejňovaných inzerátov. (ID 3430)
© 2005 - 2026 i-Bazar.sk | 0.02