Vyhľadávanie:

číslo inzerátu: 3120135
inzerát vložený: 26.11. 2018 09:35
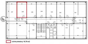
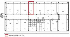
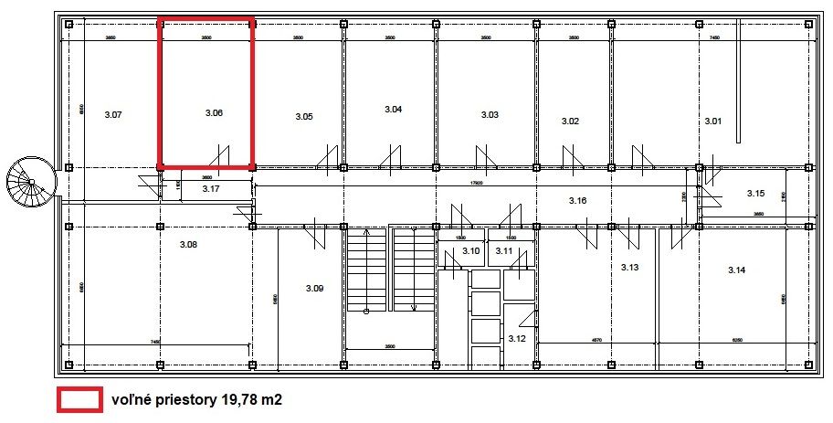
Veľmi výhodne prenajmeme administratívne priestory v priemyselnej časti mesta Žilina – Bánová. K dispozícii sú priestory s výmerami 12,9 m2 (2. nadzemné podlažie) a 19,78 m2 (3. nadzemné podlažie), ktoré sa nachádzajú v administratívnej budove. V prípade záujmu o väčšie priestory, sú k dispozícii priestory s rôznymi výmerami vo vedľajšom objekte. Objekt je situovaný v stráženom logistickom areáli, kde je dostatok parkovacích miest pre osobné a aj nákladné vozidlá. V objekte je možnosť stravovania. Cena dohodou. Viac informácii na na tel. č. 0903 895 241 alebo na prenajomreality@slovanet.sk.

Lokalita Žilina

Cena: Nevyplnené



Registrovaný užívateľ

Prezývka: ID-424285

Telefón: +421 903 895 241

Lokalita: Žilina


Všetky inzeráty užívateľa ID-424285

Zdieľať na Facebooku

Zmazať inzerát

Upraviť inzerát

Vytisknout

Nahlásit SPAM/podvodný inzerát

Pokud se domníváte, že tento inzerát je SPAM, podvod, případně porušuje podmínky inzerce, klikněte na tlačítko nahlásit. Toto hlášení bude ověřeno administrátorem a inzerát případně vymazán.


poslať E-mail

Vaša odpoveď:

Ochrana proti spamu: napíšte koľko je 1 + 7 :

Váš e-mail:

Úvodná strana | Pridať inzerát | Podmienky inzercie | Kontakt | Nápověda
Akékoľvek kopírovanie a iné využívanie obsahu i-Bazar.sk bez písomného súhlasu i-Bazar.sk je zakázané. Prevádzkovateľ nenesie zodpovednosť za obsah uverejňovaných inzerátov. (ID 3471)
© 2005 - 2026 i-Bazar.sk | 0.03