Vyhľadávanie:

číslo inzerátu: 3120015
inzerát vložený: 9.11. 2018 10:38
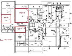
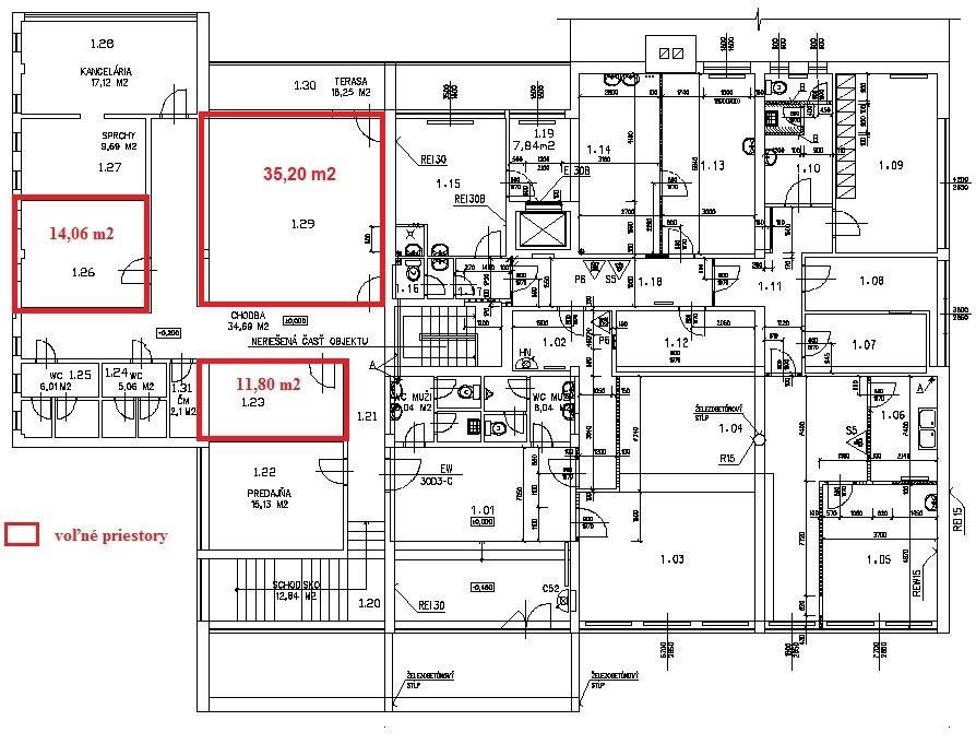
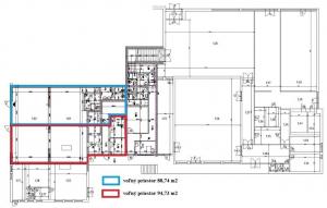
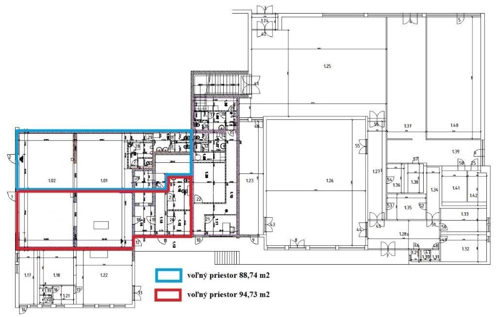
Výhodne prenajmeme zrekonštruované priestory s výmerami 88,74 m2 a 94,73 m2 na I. NP a 11,8 m2, 14,06 m2 a 35,2 m2 na II. NP v obchodnom dome v centre mesta Gelnica na Hlavnej ulici. Obidva priestory na I. NP majú samostatný vchod. Objekt je situovaný oproti budove Okresného a Katastrálneho úradu, v blízkosti sa nachádzajú viaceré prevádzky obchodu a služieb. Priestory sú vhodné na zriadenie kancelárie alebo pobočky, prevádzkovanie obchodu alebo služieb rôzneho charakteru. Cena dohodou. Cena dohodou. Viac informácií na tel. č. 0903 895 241 alebo na prenajomreality@slovanet.sk.

Lokalita Gelnica

Cena: Nevyplnené



Registrovaný užívateľ

Prezývka: ID-424285

Telefón: +421 903 895 241

Lokalita: Gelnica


Všetky inzeráty užívateľa ID-424285

Zdieľať na Facebooku

Zmazať inzerát

Upraviť inzerát

Vytisknout

Nahlásit SPAM/podvodný inzerát

Pokud se domníváte, že tento inzerát je SPAM, podvod, případně porušuje podmínky inzerce, klikněte na tlačítko nahlásit. Toto hlášení bude ověřeno administrátorem a inzerát případně vymazán.


poslať E-mail

Vaša odpoveď:

Ochrana proti spamu: napíšte koľko je 8 + 2 :

Váš e-mail:

Úvodná strana | Pridať inzerát | Podmienky inzercie | Kontakt | Nápověda
Akékoľvek kopírovanie a iné využívanie obsahu i-Bazar.sk bez písomného súhlasu i-Bazar.sk je zakázané. Prevádzkovateľ nenesie zodpovednosť za obsah uverejňovaných inzerátov. (ID 3474)
© 2005 - 2026 i-Bazar.sk | 0.02