Vyhľadávanie:

číslo inzerátu: 3119887
inzerát vložený: 18.10. 2018 15:03
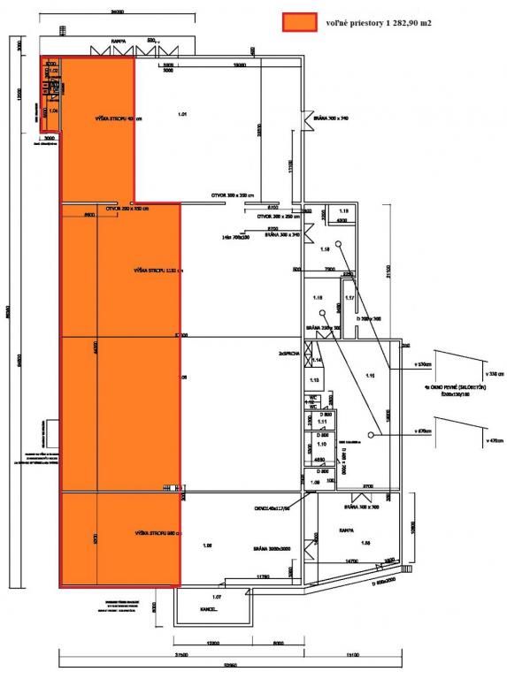
Výhodne prenajmeme skladové priestory, ktoré sa nachádzajú v Senici v zóne ľahkého priemyslu, len 1 km od centra mesta. Pred vstupom do areálu sa nachádza autobusová zastávka. Priestory je možné využívať ako skladové, výrobné alebo obchodné. Objekt je strážený strážnou službou. Parkovanie je zabezpečené priamo v areáli (aj nákladné autá). K dispozícii je 1 282,90 m2. Cena dohodou. Viac informácií na tel. 0903 895 241 alebo na prenajomreality@slovanet.sk

Lokalita Senica

Cena: Nevyplnené



Registrovaný užívateľ

Prezývka: ID-424285

Telefón: +421 903 895 241

Lokalita: Senica


Všetky inzeráty užívateľa ID-424285

Zdieľať na Facebooku

Zmazať inzerát

Upraviť inzerát

Vytisknout

Nahlásit SPAM/podvodný inzerát

Pokud se domníváte, že tento inzerát je SPAM, podvod, případně porušuje podmínky inzerce, klikněte na tlačítko nahlásit. Toto hlášení bude ověřeno administrátorem a inzerát případně vymazán.


poslať E-mail

Vaša odpoveď:

Ochrana proti spamu: napíšte koľko je 6 + 9 :

Váš e-mail:

Úvodná strana | Pridať inzerát | Podmienky inzercie | Kontakt | Nápověda
Akékoľvek kopírovanie a iné využívanie obsahu i-Bazar.sk bez písomného súhlasu i-Bazar.sk je zakázané. Prevádzkovateľ nenesie zodpovednosť za obsah uverejňovaných inzerátov. (ID 3473)
© 2005 - 2026 i-Bazar.sk | 0.02